




AVENUE REILLE
︎ INFO
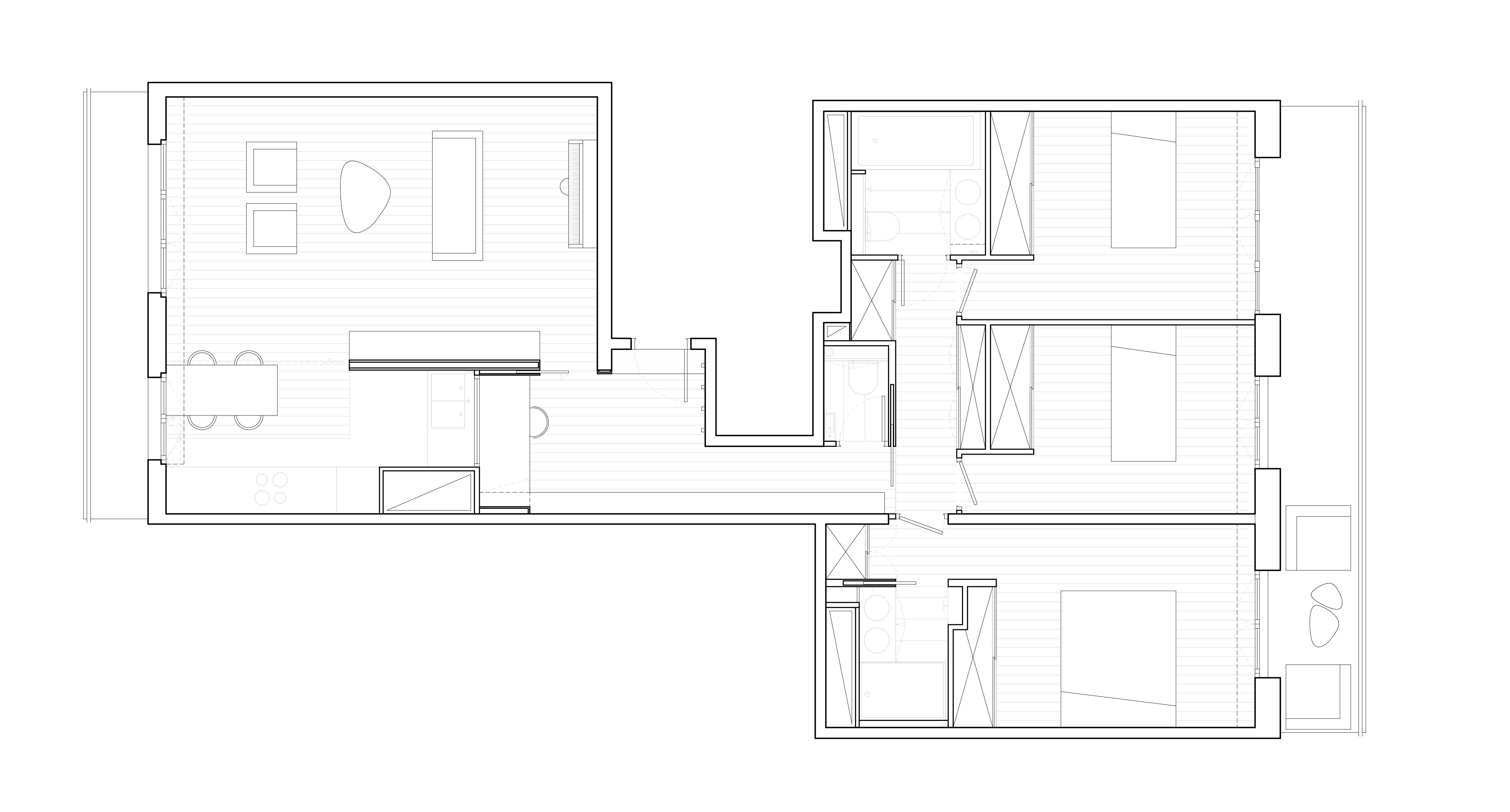
Programme
Rénovation d'appartement
Lieu
Paris, 14è
Surface
80m²
Maîtrise d’oeuvre
Simon Castellani Architecture
Maîtrise d’ouvrage
Privé
Mission
Etudes
Statut
Livré, 2018
Programme
Rénovation d'appartement
Lieu
Paris, 14è
Surface
80m²
Maîtrise d’oeuvre
Simon Castellani Architecture
Maîtrise d’ouvrage
Privé
Mission
Etudes
Statut
Livré, 2018