Logement
Equipement
Agence









39 rue de l’ancien canal
93500 Pantin
+33 (0)6 16 45 16 15
contact@castellaniarchitecture.com






︎ ︎ 
©2024 Simon Castellani Architecture
Mark

IMPASSE BOUTRON

︎ INFO

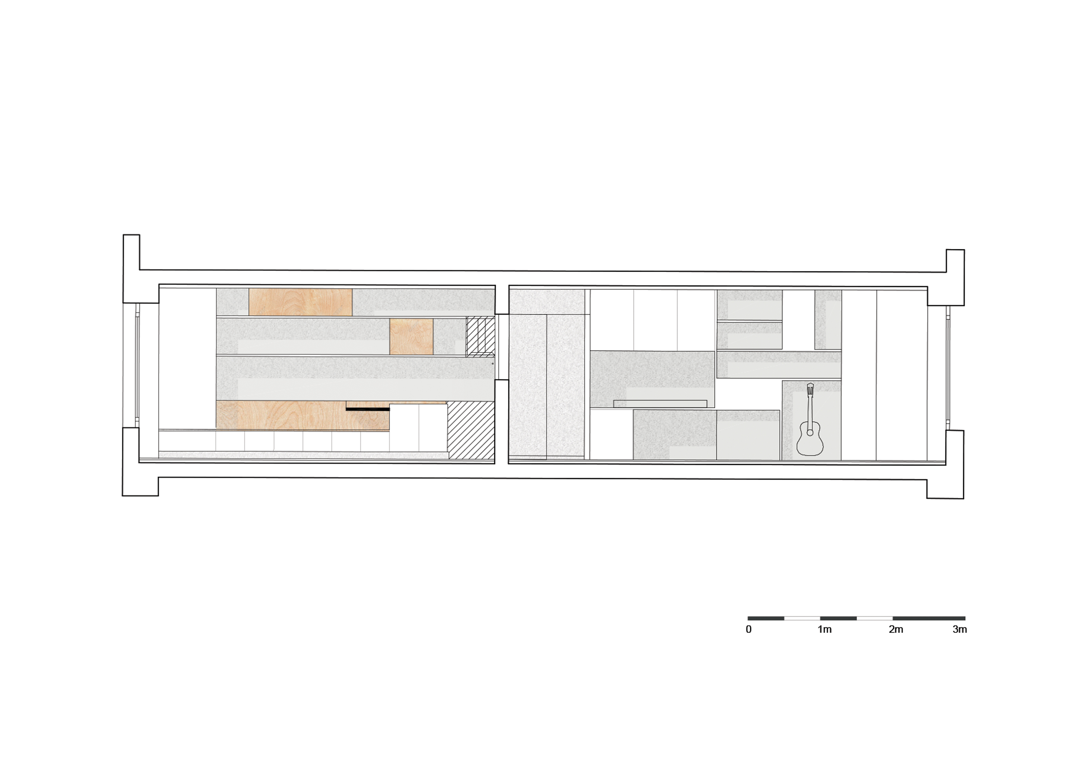
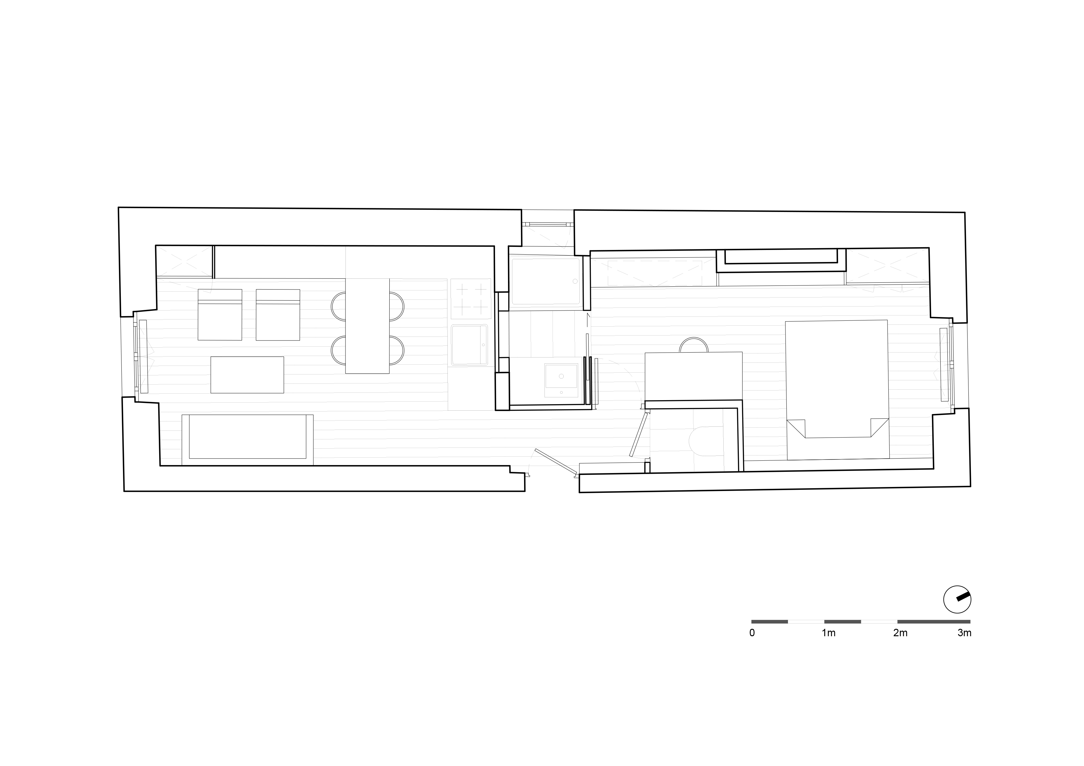
Programme
Rénovation d'appartement

Lieu
Paris, 10è

Surface
30m² 

Maîtrise d’oeuvre
Simon Castellani Architecture

Maîtrise d’ouvrage
Privé

Mission
Complète

Statut
Livré, 2019 

Mark