Logement
Equipement
Agence









39 rue de l’ancien canal
93500 Pantin
+33 (0)6 16 45 16 15
contact@castellaniarchitecture.com






︎ ︎ 
©2024 Simon Castellani Architecture
Mark

GENTILLY

︎ INFO

Programme
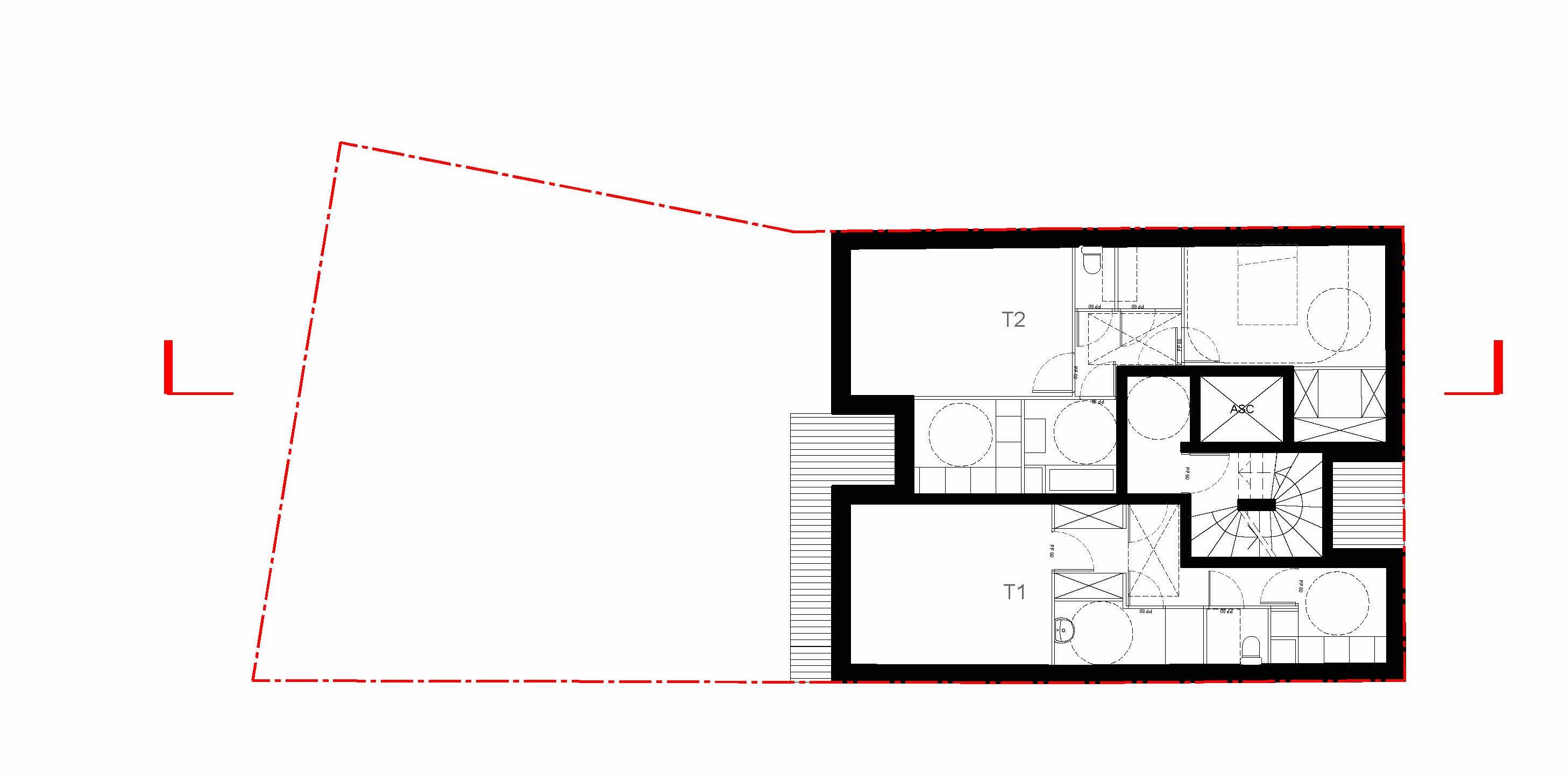
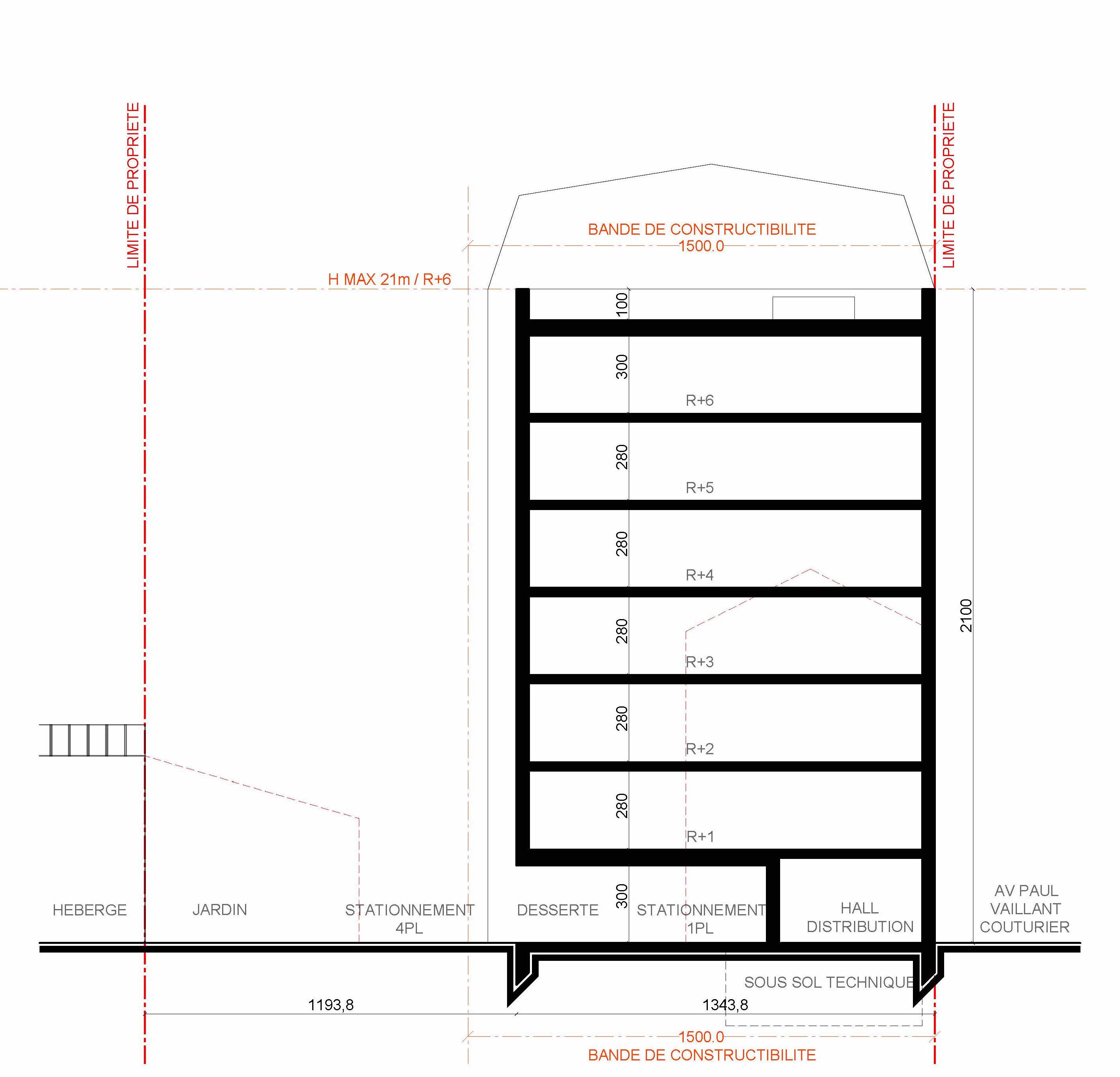
Construction de 12 logements collectifs

Lieu
Gentilly

Surface
650m² 

Maîtrise d’oeuvre
Simon Castellani Architecture

Maîtrise d’ouvrage
Samone

Statut
Etudes 

Mark