Logement
Equipement
Agence









39 rue de l’ancien canal
93500 Pantin
+33 (0)6 16 45 16 15
contact@castellaniarchitecture.com






︎ ︎ 
©2024 Simon Castellani Architecture
Mark

PIERREFITTE

︎ INFO

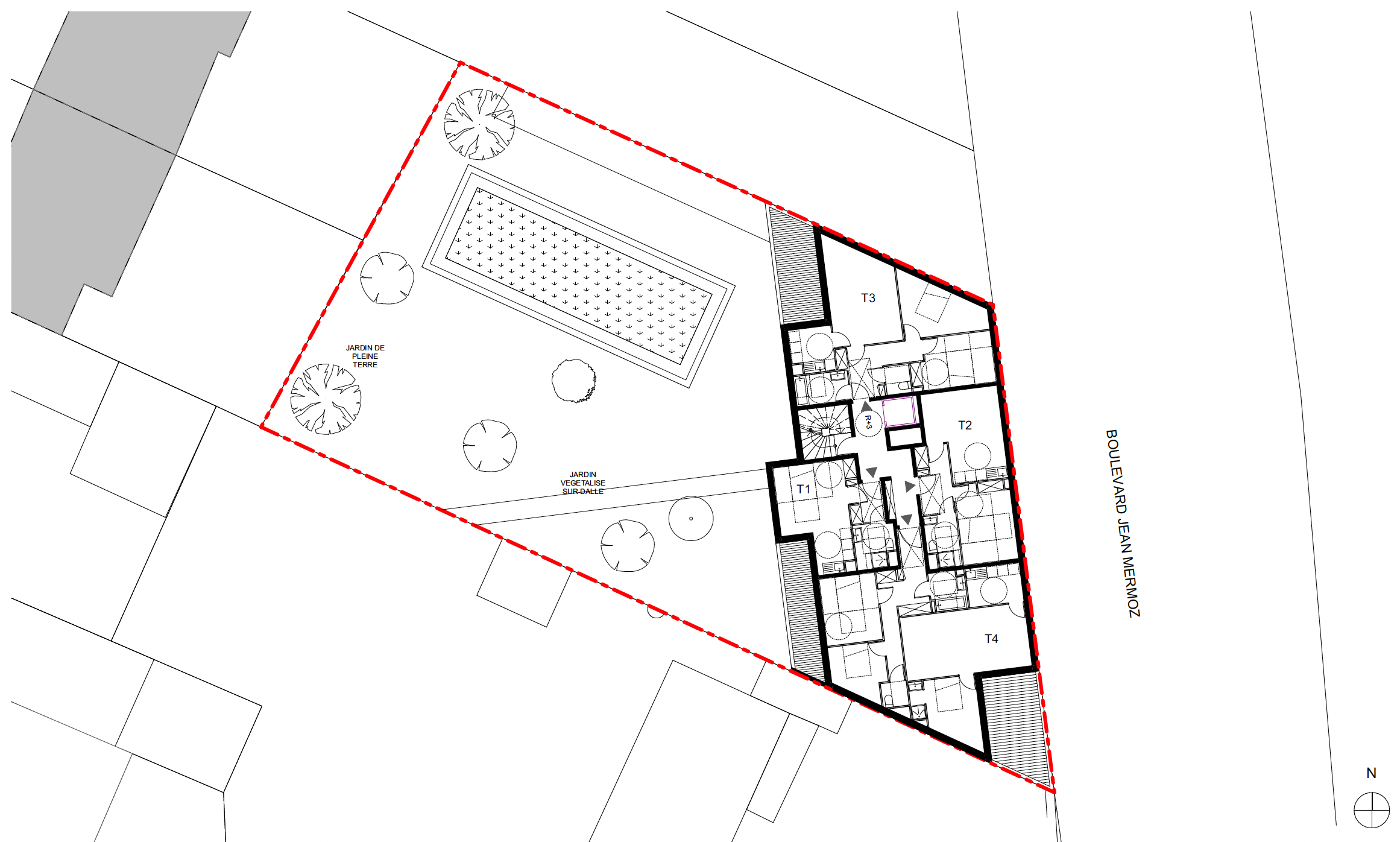
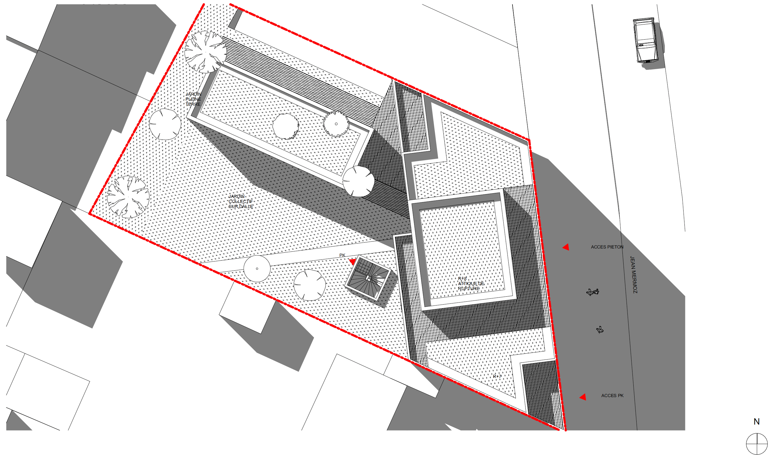
Programme
Construction de 29logements collectifs et 3 maisons individuelles

Lieu
Pierrefitte sur Seine

Surface
2006 m² 

Maîtrise d’oeuvre
Simon Castellani Architecture

Maîtrise d’ouvrage
Espacity

Statut
Etudes 

Mark